Morley Close, Slough

Offers In Excess Of £600,000 - Freehold - For Sale

3 1 2
The Flatman Partnership are delighted to present to the market this three-bedroom semi-detached home, situated on a quiet cul-de-sac within walking distance to Langley Station (Elizabeth Line), Ofsted-rated schools and presented with NO ONWARD CHAIN.
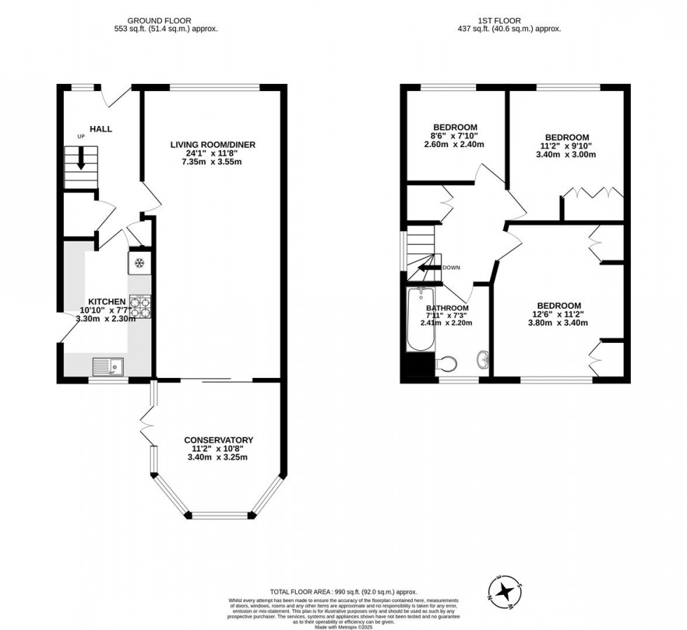
Accommodation comprises entrance hallway, 24ft living room, separate kitchen, conservatory, two good-sized double bedrooms both with fitted wardrobes, smaller third bedroom, family bathroom, good-sized rear garden mainly laid to lawn with patio and driveway parking for two vehicles.
  • Three Bedrooms
  • Semi-Detached
  • Cul-De-Sac Location
  • Walking Distance to Langley Station (Elizabeth Line)
  • Driveway Parking
  • Within Catchment For Ofsted-Rated Schools
  • Easy Access To M4 & M25 Motorway Networks
  • No Onward Chain
Floorplan for Morley Close, Slough
EPC Graph for Morley Close, Slough
Similar Properties

Get an instant online valuation

Find out how much your property is worth